The Landscape Partnership

Landscape Architecture / Urban Design / Environmental Planning / Arboricultural Consultancy / Ecological Consultancy

  • What we do
    • Landscape & Urban Design
    • Environmental Planning
    • Ecology
    • Arboriculture Consultancy
  • About
  • Projects
  • Careers
    • Bedford
    • London
    • Norwich
    • Woodbridge
  • Contact
    • Bedford
    • London
    • Norwich
    • Woodbridge

Other projects

View
Current
View
View
View
View
View
View
Previous
Next
Back to portfolio

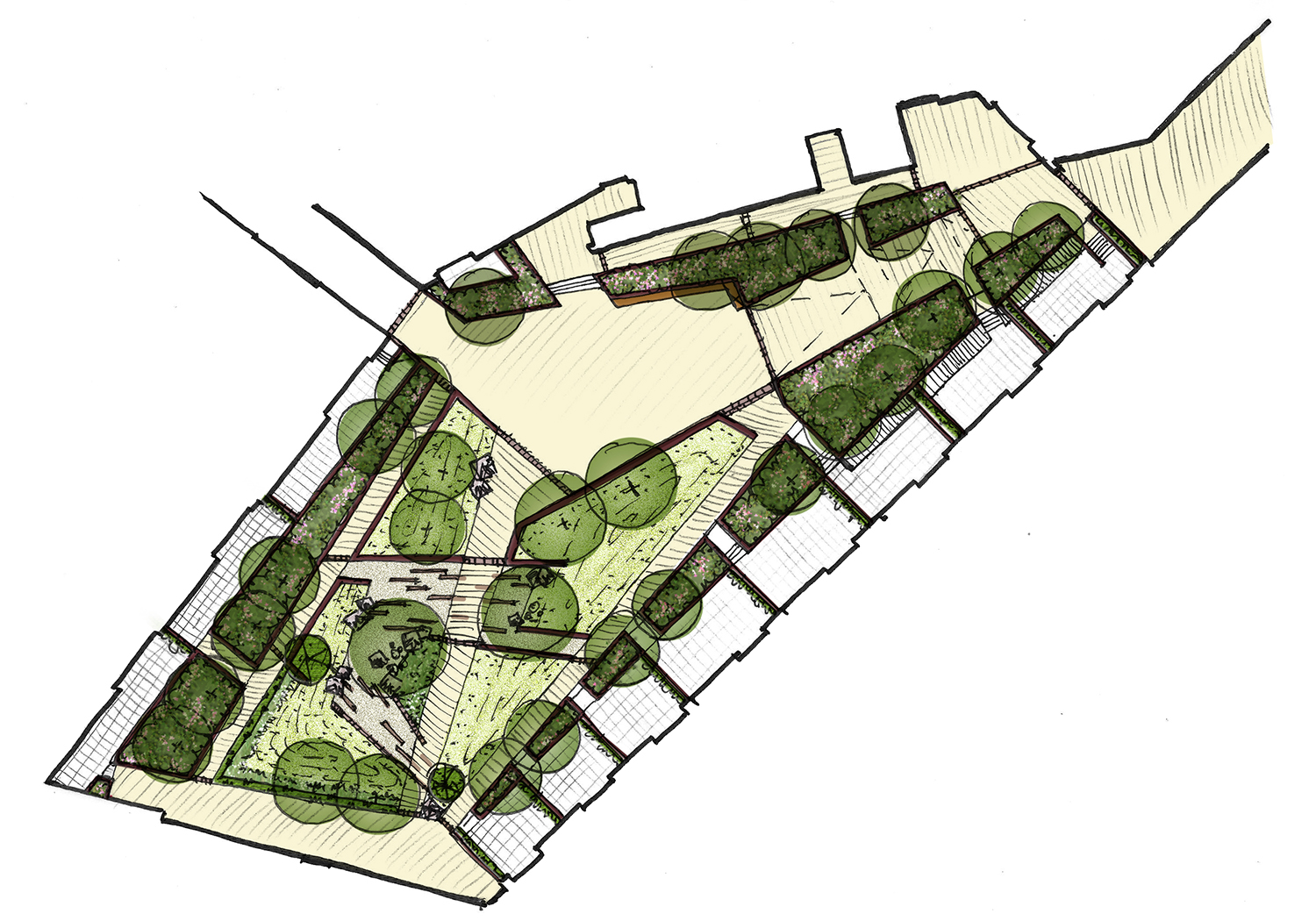
Valentine Place, Waterloo, London

Development of detailed design proposals for a high density residential and commercial development in central London. Project included central courtyard, private gardens, green and brown roofs, pedestrian street and public plaza. Scope of work included discharge of planning conditions, liaison with client and multi-disciplinary design team, preparation of tender package and inspection of works on site.

◂ Back
 
© The Landscape Partnership Ltd. Privacy Policy
Use arrows for navigation