The Landscape Partnership

Landscape Architecture / Urban Design / Environmental Planning / Arboricultural Consultancy / Ecological Consultancy

  • What we do
    • Landscape & Urban Design
    • Environmental Planning
    • Ecology
    • Arboriculture Consultancy
  • About
  • Projects
  • Careers
    • Bedford
    • London
    • Norwich
    • Woodbridge
  • Contact
    • Bedford
    • London
    • Norwich
    • Woodbridge

Other projects

View
Current
View
View
View
View
View
View
Previous
Next
Back to portfolio

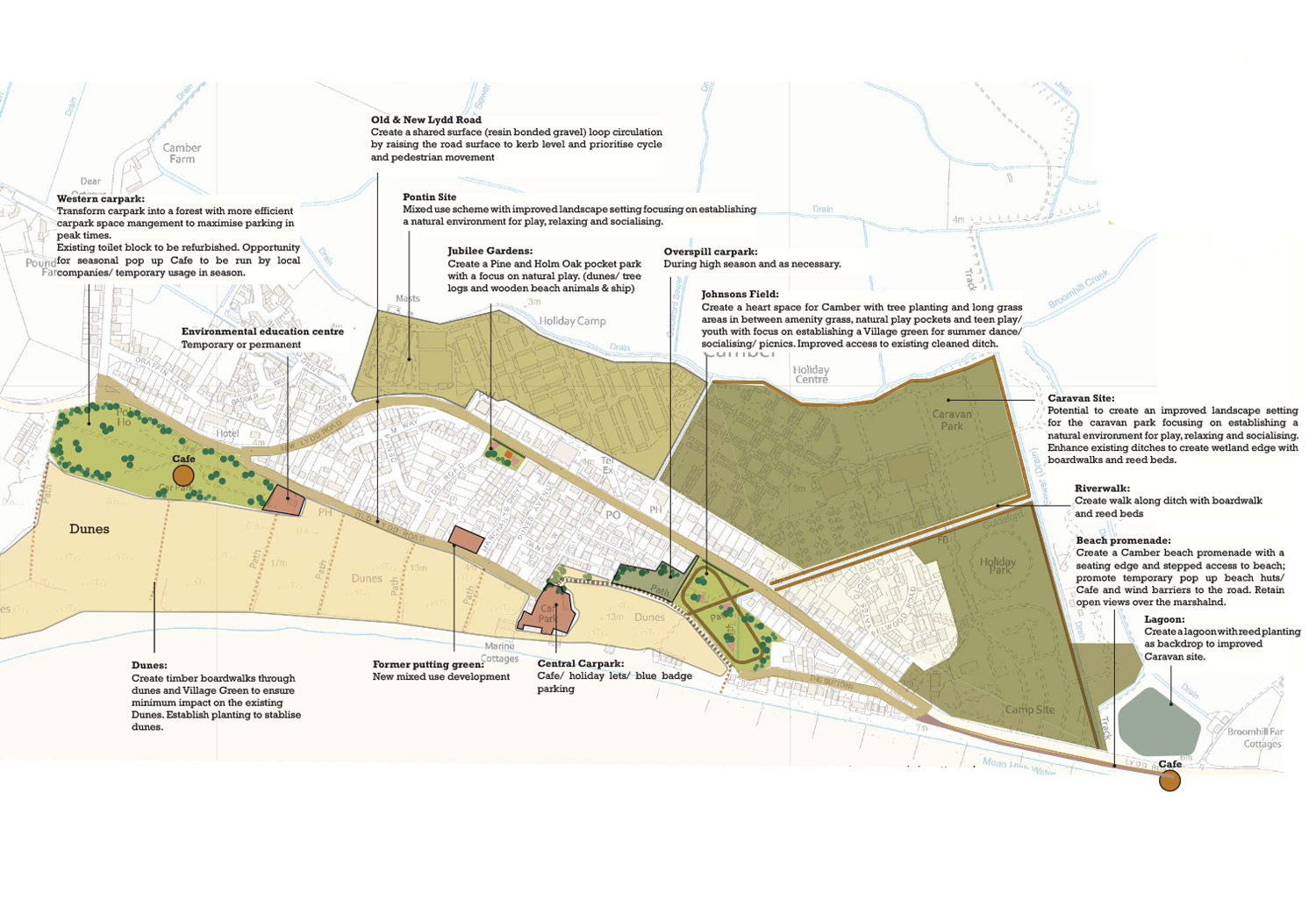
Camber Village Supplementary Planning Document

Preparation of a spatial development framework for the village of Camber Sands on the South Coast, as part of a multi-disciplinary team. The project aimed to increase the tourism and recreation potential of the village (particularly in low season), identify opportunities for future development and improve the public realm and open spaces in and around the village. The Landscape Partnership provided advice on the landscape, ecology and open space issues associated with the framework, which also included preparation of a Habitats Regulation Assessment for the SPD.

◂ Back
 
© The Landscape Partnership Ltd. Privacy Policy
Use arrows for navigation