The Landscape Partnership

Landscape Architecture / Urban Design / Environmental Planning / Arboricultural Consultancy / Ecological Consultancy

  • What we do
    • Landscape & Urban Design
    • Environmental Planning
    • Ecology
    • Arboriculture Consultancy
  • About
  • Projects
  • Careers
    • Bedford
    • London
    • Norwich
    • Woodbridge
  • Contact
    • Bedford
    • London
    • Norwich
    • Woodbridge

Other projects

View
Current
View
View
View
View
View
View
Previous
Next
Back to portfolio

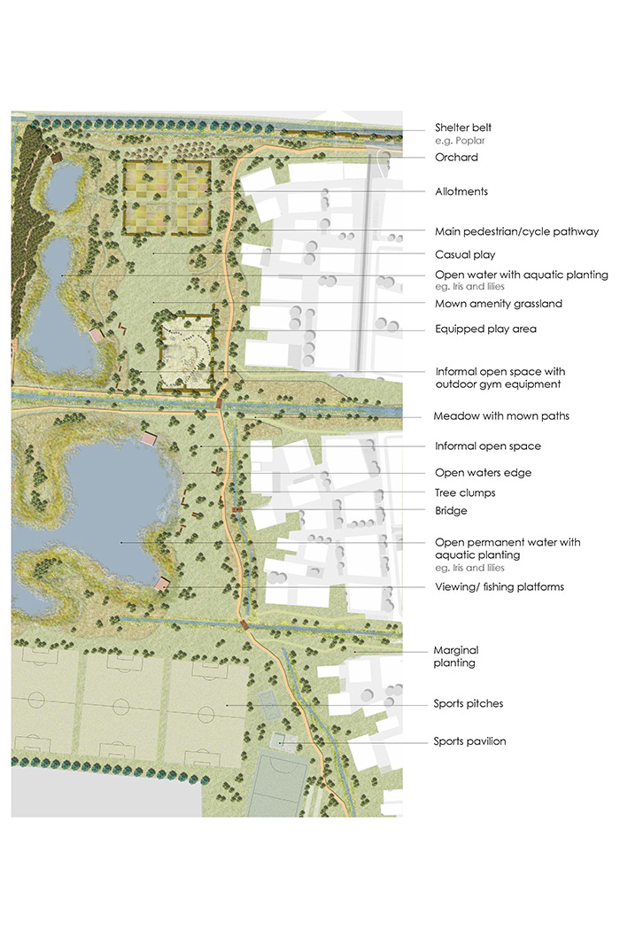
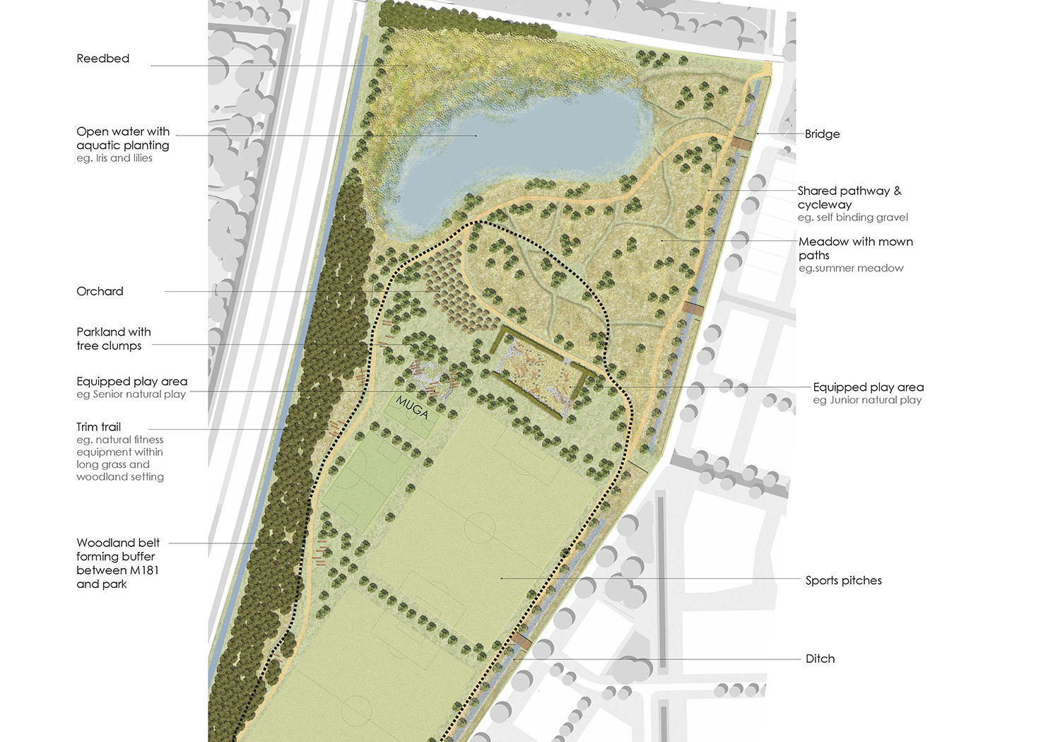
Lincolnshire Lakes, Scunthorpe

Development of a landscape masterplan for 3,500 homes in two new villages on the west side of Scunthorpe located on the edge of the Lincolnshire Fens. The Landscape Partnership worked as part of a multi-disciplinary design team to develop proposals for the new settlements. Work included the development of a site-wide landscape and green infrastructure strategy, working with ecologists to develop areas for ecological mitigation, negotiation of play and open space provision with the LPA and preparation of a Landscape and Visual Impact Assessment.

2016 Planning Awards – Overall Winner of ‘Planning for the Environment’ category

2015 RTPI Awards for Planning Excellence – Finalist in ‘Natural Environment’ Category

◂ Back
 
© The Landscape Partnership Ltd. Privacy Policy
Use arrows for navigation