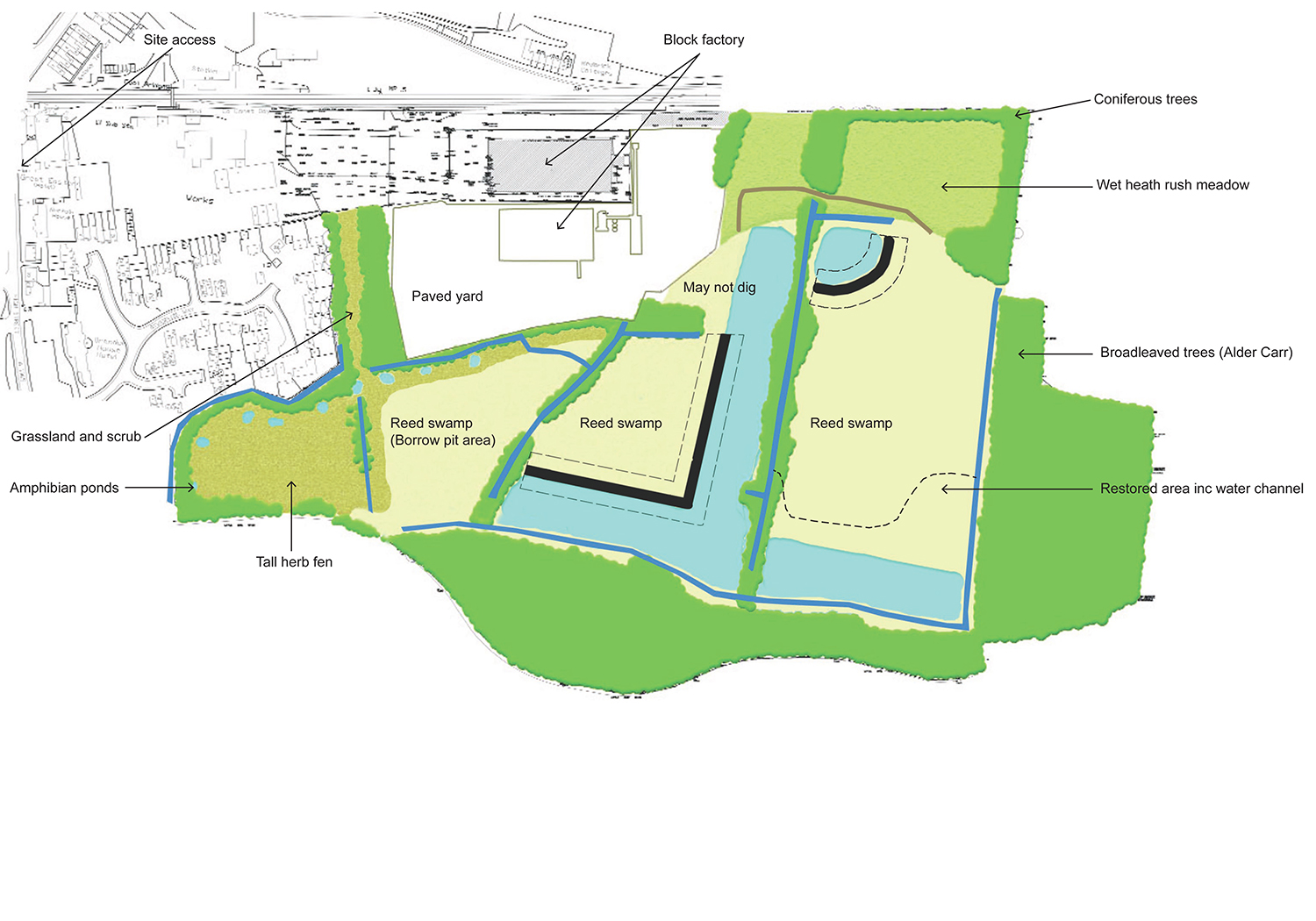
Lignacite Ltd is a specialist masonry block manufacturer. The factory at Brandon uses aggregate for block manufacture and previously imported these materials to the factory on Brandon High Street. Coordination and production of an Environmental Statement for minerals extraction, including detailed ecological survey and assessment, and development of appropriate mitigation measures. Given the sensitivity of the river valley location and the adjacent Breckland Forest SSSI, considerable research and survey work was carried out to inform the proposals. As a result the restoration concept was both appropriate to the setting, recognising the potentially high ecological value of the site, and the subsequent site management required was of a high standard. The restored site, which will be managed for nature conservation, will include a 7.5ha reedswamp, acid grassland and wet heath habitats.