The Landscape Partnership

Landscape Architecture / Urban Design / Environmental Planning / Arboricultural Consultancy / Ecological Consultancy

  • What we do
    • Landscape & Urban Design
    • Environmental Planning
    • Ecology
    • Arboriculture Consultancy
  • About
  • Projects
  • Careers
    • Bedford
    • London
    • Norwich
    • Woodbridge
  • Contact
    • Bedford
    • London
    • Norwich
    • Woodbridge

Other projects

View
Current
View
View
View
View
View
View
Previous
Next
Back to portfolio

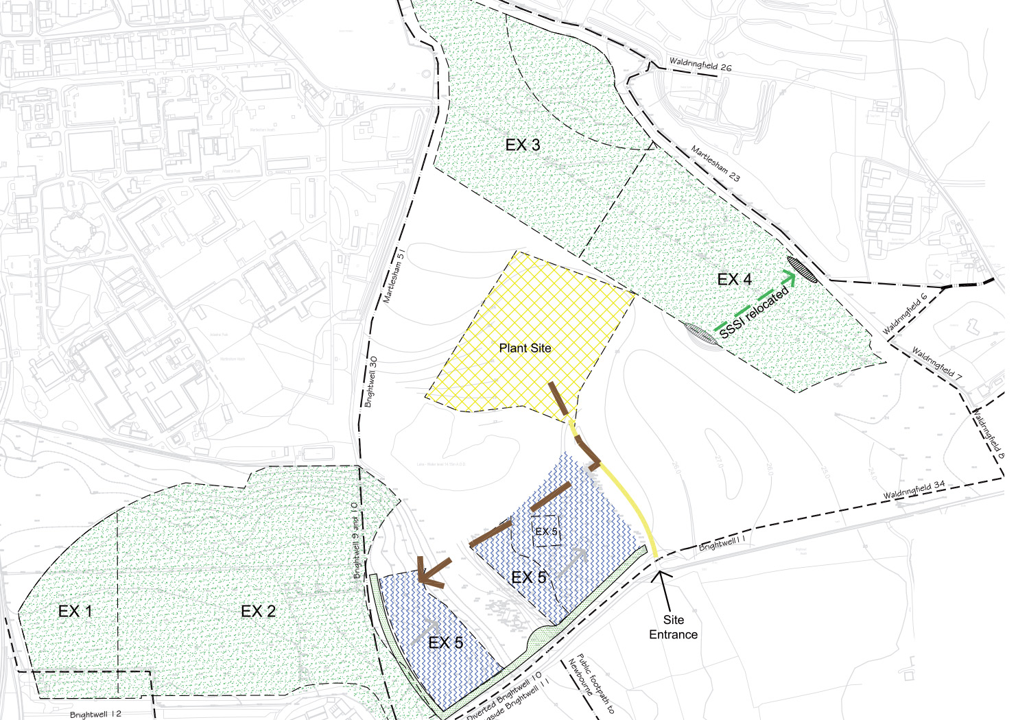
Waldringfield Quarry, Suffolk

Coordination of an Environmental Impact Assessment and preparation of an Environmental Statement to support a planning application for the co-development of a gravel quarry alongside proposed housing development at Adastral Park, near Martlesham, Suffolk. The assessment for the gravel extraction considered a scenario where the housing development proceeded, and a scenario where it did not; necessitating differing restoration objectives. Suffolk County Council granted planning consent for the quarry, which has since commenced development.

◂ Back
 
© The Landscape Partnership Ltd. Privacy Policy
Use arrows for navigation